SMR 2340 / NS 8240 7400
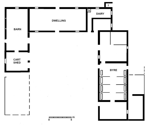
The lintel on central doorway at Easter Greenrig Farm has the initials “JW AM” but no date. This dwelling formed the main block of the courtyard of farm buildings from about 1870 onwards. However, the 1860 Ordnance Survey map shows that before then the west wing was detached and on a different orientation. It is therefore tempting to date the inscribed stone to the creation of the courtyard.






Arka architects designed three dwellings for GRS Homes in the courtyard steading, preserving some of the original stonework and the setting. A new date stone of “2008” was placed on the new gable at the end of the east wing.


Bibliography
1754 – John Boyd of Easter Greenridge —
“all and haill that his easter half of the lands of Greenridge — as also all and haill that the portion of the lands of Midleridge and Plumbs with houses [etc] — lying of old within the parish of Falkirk and now within the parish of Slamannan.”
Scotsman 14 November 1892, 9:
“Proof was led in an action of divorce by James Forrester, farm servant, Easter Greenrig, Stirlingshire, against his wife, Elizabeth Morrow or Forrester…”
Falkirk Herald 11 July 1908, 8:
“The FARM of EASTER GREENRIG lying in the Parish of SLAMANNAN, at present possessed by Mr James Forrester, and extending to 120 Imperial Acres or thereby. The farm is situated about 6 miles from Falkirk, and within 3 miles of Slamannan… tenant retiring… Callendar Park…”
Cumbernauld News 30 October 1991, 40:
“SLAMANNAN by Falkirk Easter Greenrig. This is an opportunity to purchase a traditional stone farmhouse with outbuildings, forming a south facing courtyard, in need of local renovation but with excellent potential and including approximately 25 acres of grazing…”
