Muiravonside House sat on a level platform on the north side of a steep valley overlooking a loop in the River Avon and as a consequence its early name was Neuk. This location provided dramatic scenic views along and across the gorge. The rolling hills in this area are best suited to forestry and pasture and these were the mainstays of the early economy. Arable was available on the lower slopes. Linlithgow was just 2½ miles to the east-north-east.
For much of its history the estate of Muiravonside was incorporated into larger baronies and so did not see much investment in the house there. In 1471 Agnes, the heiress of the Melville family, married Robert Ross and Muiravonside became part of the Barony of Ross and Melville. It was only in 1685 that the occupant, Andrew Ross, from a branch of the family, bought the superiority and it became the independent barony of Muiravonside.
The estate subsequently changed hands on numerous occasions as indicated in the following list of owners:
| Thomas Melville | |
| 1458 | Agnes Melville (daughter; married Robert Ross 1471) |
| c1478 | John Ross (son; killed at Flodden) |
| 1513 | Ninian Ross (son?) |
| 1556/1563 | John Ross (illegitimate son) |
| John Ross (son) | |
| Andrew Ross (son) | |
| James Ross (son) | |
| 1653 | Walter Ross (brother) |
| 1666 | Andrew Ross (brother?) |
| Jean Ross (daughter; married her cousin John Ross) | |
| 1700 | sold to Lt-Col John Dalziel (killed at Battle of Blenheim) |
| 1704 | widow |
| 1722 | Thomas and Agnes Dalziel (son & daughter) |
| 1724 | sold to John MacLeod |
| Alexander MacLeod (son) | |
| 1785 | Elizabeth Macdonald of Largie (niece; married Charles Lockhart) |
| c1787 | James Macdonald |
| 1793 | Alexander Macdonald |
| 1796 | Alexander Lockhart’s Trustees |
| 1799 | sold to Alexander MacLeod |
| 1835 | sold to Charles Stirling |
| 1867 | Andrew Stirling (son) |
| c1880 | Sold to Thomas Mayne Stirling (cousin) |
| 1893 | John Stirling (son) |
| 1905 | Trust |
| 1908 | Thomas Willing Stirling (brother) |
| 1930 | Arthur Charles Stirling (son) |
| 1967 | Charles Stirling (cousin – a disputed inheritance took 10 years) |
| 1977 | sold to Falkirk Council |
The ownership reflected the nature of society at large. So we have younger sons of leading families who made money in military service buying the estate, as well as the sons of the owners taking up posts as officers in the armed forces. Alexander MacLeod who acquired the estate in 1799 had been an attorney in Spanish Town, Jamaica. In this role he was responsible for managing Unity Valley Pen, St Ann and probably Raza Mount plantations. These plantations used slave labour and indeed Alexander MacLeod is named as a slave-factor for at least four voyages there.
Traditionally it is said that John Ross, the illegitimate son of Ninian Ross, was responsible for building the first stone house at Muiravonside in the mid 16th century, though on what basis is unknown. Certainly this was a period when such work became economically viable and fashionable

The earliest form of the building was identified in 1953 by the RCAHMS as a two-storeyed block, aligned ENE/WSW and measuring 46ft 7in in length by 20ft 8in in width over walls 2ft 7in thick. The walls appeared to be well built of random rubble; the quoins were dressed and a quirked edge-roll moulding was wrought on the voids. A door on the first floor of the south facade, later made into a window, must have been reached by a forestair giving it the appearance of a modified bastle house. Another doorway occurs on the ground floor. It is this house that is crudely depicted on Pont’s map in the 1580s.

The RCAHMS surveyors were uncertain what the next step in the development of the house was. They tentatively suggested that part of the lower storey of the east wing might have been built early in the sequence as it had smaller rubble in its walls than occurred elsewhere. However, it is evident from their report that much of the stonework of the house was masked by ivy and cement render. Photographs taken shortly before the demolition of the house show that this render had fallen off by then and indicate that the southern part of the west wing was also made of smaller less regular stone than is found at the northern front, though unfortunately the photographs do not contain a lot of detail.
From the plan it would seem that the west wing was the most logical place for an extension, providing a typical L-shaped building. A wall, which latterly was internal, housing fireplaces would make a convenient gable and it is at the north-east corner of this that the earliest datestone was to be found until it was moved to the doorway further along that wall. This doorway had a moulding of the same character as those on the south front, which can be taken as confirmation.

The datestone had two insate panels, the upper containing the date “1604” and the lower four initials in Lombardic lettering “IR MQ” – all the numbers and letters being separated by lozenge-shaped stops. The first initials are those of John Ross, the second those of his wife.

In the east face of the East Wing there was another panel, which bore the date 1630; this may be the date of the first construction of this wing, as evidenced by the older masonry mentioned above. It would have form a shallow courtyard facing north.

The 18th century was one of considerable tumult for the owners of Muiravonside and this instability left little room for further investment there. In 1724 John MacLeod, descended from the MacLeods of Bernera, bought Muiravonside estate. He was a staunch royalist and became embroiled in the plotting to return the Stuart monarchy. James Erskine of Grange, a leading Scottish advocate, and brother of the exiled Earl of Mar, had married Rachel Chisly of Dalry. He had supported his brother in the uprising of 1715 and had been having secret meetings on this subject when his wife threatened to expose him. Shortly before midnight on 22 January 1732, Lady Grange was seized at an Edinburgh lodging-house by four Highlanders, gagged, and taken in a sedan-chair to the outskirts of the city. Here horses were waiting and they travelled through the night to the seclusion of Muiravonside House. Next night, Lady Grange was taken to Wester Polmaise, where she remained for seven months. It was falsely reported that she had died of natural causes and a mock funeral was held. From Polmaise she was secretly conveyed to the Hebrides where she could be safely isolated, periodically moved to halt any investigation. She lived for a time on St. Kilda but finally she ended up on a remote corner of Skye where she died in May 1745. The outbreak of the ’45 immediately followed and diverted all attention from her fate. Shortly after the commencement of the ‘45 John MacLeod, who was a well-known Jacobite sympathiser, was arrested and held in Edinburgh Castle. He therefore took no further part in the rebellion and was allowed to return to his estate at Muiravonside when it was all over.

John MacLeod added lands to his estate of Muiravonside which now stretched as far west as Drumbowie. The public road ran from west to east along the natural ridge, which is now taken by the West Avenue, and down to Woodcockdale Ford near Muiravonside Mill and on to Linlithgow. Between it and the house was a large area of woodland which provided a screen of privacy. The glen was also heavily wooded. A small walled garden lay to the east of Muiravonside House and the short main avenue extended from this to the public road. The home farm, Newparks, was on the other side of this road, 380m north of the house.
Westward, the old road went to Reddingmuir and the ground where the great cattle trysts had been held since the turn of the century. In the autumn it would have seen hundreds of cattle being driven south to the English markets. Despite this MacLeod was able to get the road closed and for many years there was a gate at its east end adjacent to the ford. Traffic was diverted northward from the ford to the road passing Compston. This road had run parallel to the southerly one for several miles, meeting it just to the east of what is now Standburn. The fields between the two roads were enclosed.
John MacLeod died in 1771. He had married twice and by his first wife, Elizabeth Straiton, he had two children – Alexander and Elizabeth. Elizabeth married John Macdonald of Largie (second cousin of Flora MacDonald of Jacobite legend), by whom she had an only daughter, Elizabeth, who succeeded to Muiravonside in 1785.
John MacLeod’s son, Alexander, known as Sandy, played a far greater role in the Jacobite rebellion than his father was able to do. Like his father and grandfather, Alexander was bred to the law and became an advocate on 12 July 1743. Like them too, he was a Jacobite and became a major messenger between the Scottish Jacobites and Prince Charles Edward Stuart in the spring of 1745. When the Prince landed in Scotland, Sandy immediately joined his standard and became the Prince’s Aide de Camp. After the whirlwind victory of Prestonpans he was despatched from Holyrood to Skye to enlist the support of the Chiefs in that island to the Jacobite cause. He carried a letter from the Highland Jacobite Chiefs reminding MacLeod and MacDonald of Sleat of their former promises of support and of the danger to them if the Jacobite rising failed. Alexander’s mission failed to gain their support. He fought in all the actions of the ’45 Campaign and stood beside the Prince at the Battle of Culloden Moor. He was one of the few who accompanied the Prince from the field. His servant, Ned Burke, helped guide Prince Charles to safety. On 20 April 1746 Alexander MacLeod returned to Ruthven Barracks near Kingussie in Badenoch to advise the Jacobites assembled there that they should seek safety in the best way they could. In May two French frigates landed a total sum of 35,000 louis d’or at Loch Arkaig and Alexander MacLeod helped to secrete some 15,000 of them in a wood to the south of the loch. According to secretary Murray of Broughton, Alexander received some of it and was also instrumental in giving some to Raasay and Donald MacLeod of Bernera. Some 12,000 louis d’or still remained and were tied up into two bags which Dr Cameron and Alexander hid in a secluded spot on the side of Loch Arkaig. Next day the fugitives had to flee and Alexander skulked in the parish of Gairloch. He seems to have gone into exile on the continent. By 1773 he was back in Scotland on the island of Raasay.
Unsurprisingly, he was not pardoned by the Government until 11 July 1778 and inherited the estate. He died at Muiravonside on 30 December 1784. He married, without issue. He had, however, by one of his servants, Louisa Mowat, two illegitimate sons. After his death an ugly story that he had been poisoned by his cook was circulated. It was expected that after his wife’s death he would have married Louisa Mowat and to prevent this, it was said that his cook was instigated to poison her master, either by the local school-master who was himself jealous of Louisa Mowat, or by Alexander’s niece, Elizabeth of Largie, and her husband, who would not inherit Muiravonside if the marriage were to take place and Louisa’s sons legitimated. Whatever was the cause of his death, Alexander MacLeod was a very old man when he died. His niece succeeded to Muiravonside, and, in due course, she, her husband and large family went to live there. Owing, it is said, to the extravagant habits of her husband, Charles Lockhart Macdonald, they became financially embarrassed, and were forced to let Muiravonside House and live in the home farm at Newparks. Charles managed to obtain the post of Collector of the Customs at Bo’ness. Elizabeth died in 1789, and her husband became bankrupt. He died in 1796. Three years previously their third and surviving son had been served heir to his mother and grandmother. As he was a minor, his guardians deemed it advisable to sell Muiravonside, and after lengthy legal formalities the estate was sold by public roup in February 1799.

Illus 7: Muiravonside House from the main drive, c1950.
The house had been advertised as having nine fire rooms, with a milk house, laundry, stables, coach-house, good garden, and dovecote.
The purchaser was another Alexander Macleod who, as we have seen, made his fortune in Jamaica. It was undoubtedly this Alexander who transformed Muiravonside House into the large country house that survived into the late 20th century (the outline of which is shown on an estate plan of 1813).
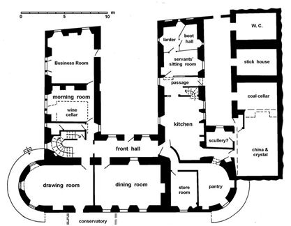
An apsidal bay was placed on the west end of the main block, matched by a similar bay on the extended east end. The two-storey bays had flat roofs, railed around for use as balconies. The roof of the main block was hipped and extended to provide shelter at the backs of these producing a style familiar in Jamaica. The west and east wings were extended northwards to provide a deep but narrow approach court and a hall was inserted across the end of this to provide a new entrance. Its façade had three windows on the first floor and one to either side of the doorway. The latter sat in a shallow porch with a gablet emphasised by a deep backset margin. Above the door was a plain shield with a diagonal bar.


The gables of the two wings each had four windows – blank in the case of the east wing. They had steep-pitched skews, further emphasised by central chimney stacks. Rather curiously the gables were set at a slight angle to the buildings instead of at right angles. This may have been to “correct” the visual distortion that occurred from the approach road. The overall effect was unusual but pleasing. Large chimney stacks also feature on the revamped south façade, as does an attic storey set within the steep pitch of the roof.

The grounds would also have been laid out at this time. The old west-east road to the ford at Woodcockdale had been closed and the public road now forming the northern boundary of the estate was straightened opposite Compston leaving a long narrow strip of former muir between it and the estate. It was incorporated into the lands and improved. The main drive to the house was from the north and it was re-engineered to form graceful curves on a more level track 890m long. A curved carriage recess was placed at the junction with the public road. This had an apsidal dwarf stone wall surmounted by a cast iron railing, but there was no lodge until later (this arrangement was demolished by FCT in 2010). A lime avenue led from the main road to a bridge over the stream, likewise provided with short parapets and railings. On the high ground it approached an old quadrangular stable block or “offices,” but veered off to the right before reaching it to descend to the house itself perched on the edge of the glen. An even longer western approach utilised the old road along the ridge in that direction and miles of paths and track were laid out. The paths included pleasure walks terraced into the sunny hillside of the valley.

Illus 11: The Main Drive or Lime Avenue.
A summerhouse was carefully positioned a convenient 205m east of the house near the top of the tall escarpment with a roaring weir on the River Avon below creating white water just to the left of its view and the ruins of Rob Gibb’s or Carribber Castle silhouetted against the skyline atop a cliff face to the right. There were fewer trees to obscure the views in the early nineteenth century. There is no record of its construction date, but stylistically it belongs to the period 1810-1830.
It was designed as a hybrid between a hermitage and a summerhouse, blending into the landscape of the estate except for a rather limited view from a stretch of the river bank. The ornate facade is contained between boulder outcrops that project slightly into the valley and the sandstone vaulted roof is covered by earth and vegetation.
The facade consists of a central triangular-headed doorway echoed by a window on either side. These have broad backset dressed sandstone margins and reflect that on the main door of the house itself. They contrast with the rendered rubble walls, capped by a plain eaves course that holds back the vegetative cover. Small boulders form drystone flanks to the main facade and are in turn sandwiched between the outcrops of bedrock. A drain has been incorporated into the boulders on the west side.




Illus 12,13,14 & 15: Photographs, Plan and Elevation Drawing of the Summerhouse at Muiravonside.
Further to the east a walled garden occupied the broader valley floor. It was semi-circular in plan and a gardener’s house was built just to the north. Here the river runs almost south/north allowing the sun to enter the sheltered vale.

Illus 16: An espaniolated tree on the edge of the lawn where the Walled Garden used to stand, c1990.
Large parts of the grounds were planted with trees. Whilst these provided shelter and a scenic backdrop their true value was as an economic crop and the species planted were largely larch, spruce and Scots fir. Coal had been worked on a small scale but in 1825 the main seam was re-opened and leased to a contractor and exploitation of the mineral field began in a larger scale. The proximity of the Union Canal made it convenient for the Edinburgh market. The construction of the Edinburgh and Glasgow Union Canal caused much disruption to the neighbourhood with the influx of hundreds of labourers.
However, it ran just to the north of the Muiravonside estate and so did not require any land acquisition from it. In 1840 the Slamannan Railway cut diagonally across the lands of Muiravonside to the west of the policy grounds and a station was placed at Bowhouse. From here a mineral line to the west allowed the coal at Drumbowie to be worked.

Having made a substantial investment in the estate it was put up for sale in 1817, though it does not seem to have produced any interest and remained in the hands of Alexander Macleod for some time:
“To be SOLD by private bargain, THE ESTATE of MUIRAVONSIDE, in the county of Stirling, consisting of above 500 acres, beautifully situated on the banks of the Avon, about three miles from Linlithgow, five from Falkirk, and 16 from Stirling.
The property has been highly improved and embellished, the plantations are thriving and tastefully disposed, and the mansion-house is delightfully situated in the sheltered vale of the wooded banks of the Avon. A more desirable country residence seldom presents itself.”
(Caledonian Mercury 18 August 1817).

One of the overarching themes in the designed landscape was the contrast between the different land uses. To the north of the house were wide rolling hills of pasture dotted with grand trees. These were framed by the woodland, artistically arranged with sweeping curved edges along the dominant ridges and valley sides. To the west they encircled the richer arable land and throughout provided shelter. The views out from the open meadows were just as magnificent with the Bathgate Hills forming a backdrop.

Illus 19: The Coat-of-Arms at Muiravonside Manse.
Alexander Macleod married Frances Ayliffe Dalmahoy in 1801 and their coat-of-arms is displayed in the south wall of the walled garden at Muiravonside manse. It shows dexter – quarterly, 1st and 4th, a castle, triple-towered and embattled; 2nd and 3rd three legs in armour, flexed and conjoined in triangle at the upper part of the thigh (Royal House of Man) for MacLeod; sinister – three spur-rowels for Dalmahoy. The crest appears to be a lion’s head erased which was that of the MacLeods of Muiravonside, distinguishing them from the MacLeods of MacLeod with their bull’s head. In a ribbon above is the motto “AUDENTIOR ITO” which is taken from Virgil’s Aeneid and means “Do not give up.”
(Incidentally, the motto for the Muiravonside MacLeods was “Murus aheneus esto” – “be thou a wall of brass.”). Why the stone plaque is where it is remains a mystery. It is possible that it had been intended as part of a sepulchral monument, but in that case it should have been in the nearby churchyard. The manse was built in 1806 and Macleod was one of the principal heritors and may have gifted the small walled garden. By 1834 Alexander Macleod was beginning to resign his lands into the hands of his trustees and in 1835 they were sold. It is possible that the coat-of-arms had occupied a prominent position at Muiravonside House and that in preparation for his departure he had them transferred to the manse garden. Alexander Macleod, formerly of Muiravonside, died on 22 April 1839 aged 85.
The new owner was Charles Stirling of Drumpellier. He continued the agricultural improvements to the estate. Ceramic field drains had started to be introduced into Scotland and he took them up with enthusiasm and encouraged a manufacturer to set up on his land. He also introduced a water-powered sawmill to expand his markets for timber. There had been a corn mill at Neuk since at least 1508 when John Ross succeeded to the estate and it is mentioned again in 1785 when Joseph Read took a 19 year tack. It is shown on Roy’s map and the sawmill occupied the same site. It was fed by a long lade starting at a weir below the summerhouse.

It was probably also Charles who had the large pair of limekilns constructed in the small valley of the Bowhouse Burn well to the north of the house. Lime was used extensively on the local clay soil to enhance crop productivity. It was also needed for the construction of the new town in Edinburgh and again the Union Canal was a convenient transport artery. The kiln complex is extravagantly ornate – its curved façade containing three large arches with bullnose dressed margins and a similar broad string course above. To either end of this was a small circular two-storey building. The structure was set into the hillside so that the raw materials – coal and limestone – could be fed into the top of the chambers with relative ease.

Up until this point the stables or offices had been located 195m to the north of the house (just to the south of the present visitor car park). They were in the form of a small quadrangle and would have been close to the estate entrance before the old public road was closed off. They would typically have contained the coachhouse, hay loft, stable and tack house. They are shown on Grassom’s map of 1817, but were demolished soon afterwards. A new steading was erected on the hilltop above Muiravonside House to take their place. The eastern range has a neat elliptical arch for the coachhouse with a square hayloft door set above it and a circular louvred vent above that – all with backset margins. These are set within an elongated stubby tower with crowstepped gables. Single storey wings to either side, also with backset margins and a crowstepped gable, would have been used as stables. This façade was evidently meant to be seen and it would seem that this wing stood in isolation for a decade or so. A tall wall against its south side formed one side of a small walled ornamental garden with a lectern style doocot on its north-east corner. This has two ornate dormers for the pigeon holes.


Illus 22 & 23: The mid 19th Century set of Farm Offices
Over subsequent years cart sheds and store buildings were erected to the west of the coachhouse creating a courtyard with a vehicular entrance at the northwest corner. At about the same time an additional range of service buildings was added to the east of the East Wing of the house. This contained a washhouse, laundry room, wood store, coal cellar and store rooms. It is said that the estate brewed beer at this time and so it is probable that it occupied some of these premises.


A large circular pond sits at the foot of the hill on the north side of the old public road. It is shown on the first edition OS map, half in the woodland belt and half in the meadows. It seems to have functioned as a reservoir for the livestock grazing the pasture and as a picturesque garden feature with a path around it.
Charles Stirling had five boys and three girls, most of whom had interesting careers. The boys, in particular, were involved in the armed forces throughout the British Empire. Some of them are commemorated in the family graveyard to the east of Muiravonside House. It was created in 1862 and was consecrated by Charles Terrot, Bishop of Edinburgh, on 4th July. The associated document reads:
“the said piece of ground be severed from all common and profane uses whatsoever… and to dedicate and consecrate it to the sacred name of God, to be used from henceforth as a Cemetery or place of Christian burial only”.

Illus 26: The Stirling Family Graveyard at Muiravonside Estate.
The enclosure is rectangular with boundary walls of brick protected by sandstone copes. It is terraced into the hill slope with the ground to the west of a central path at a higher level. The path has wrought iron gates at either end. The first burial was in the centre of the graveyard: “SACRED/ TO THE MEMORY/ OF/ CHARLOTTE DOROTHEA/ WIFE OF/ CHARLES STIRLING, ESQ/ OF MUIRAVONSIDE/ AND DAUGHTER OF/ VICE ADMIRAL/ CHARLES STIRLING/ OF WOBURN FARM, SURREY,/ WHO DIED/ AT 18 CURZON STREET/ LONDON/ 26TH JUNE 1862/ AGED 62”.
Writing of his summer holidays away from London at this time one of Charles’ grandsons, Lieutenant-Colonel WF Stirling, DSO, MC, (son of Captain Francis Stirling RN) recalled:
“Muiravonside was owned at the time by a married uncle, so that I had a number of young cousins for companionship. The drive from the lodge to the house was almost a mile long, winding through lovely woods, and the house was built on a wooded cliff high above a trout stream of peat-brown water flecked with spume. The cliff was riddled with caves and galleries, relics of old time silver workings, now capsized and disused, chocked with brambles but vastly mysterious.
My grandfather, a man of strong convictions, had believed that everyone should be mutually helpful; that his tenant’s troubles were his own; that employment should be found on the estate for all his men’s children, and that everything in use on the estate should be produced, if possible, by the estate itself. Consequently his suits were made of cloth woven from the wool of his own sheep and his boots were made by a local shoemaker. His money, little of which was spent outside, was in constant circulation among his tenants.
The post of coachman seemed to be hereditary, James, the holder of the title when I was a boy, was a giant of a man, with red hair and a flaming spade-shaped beard which reached right down to the third button of his livery. That great growth on the box seat was considered out of place by the more fashionable members of the family, but James resolutely declined to shave it off. Eventually it was decided that the only possible solution was to have chestnut horses harnessed to the coach to match the colour of James’ beard.”
Charles Stirling extended his paternal instincts to the local community. In the 1860s he started a tradition of inviting the children of the Muiravonside Sabbath School to Muiravonside House where they were entertained and given Christmas treats. He died at Muiravonside House on 25 August 1867 aged 77 and his eldest son, Andrew, inherited the estate. Andrew had no children and so his trustees sold it to his cousin Thomas Mayne Stirling. Thomas M Stirling was the son of John Stirling of Eldershan and St Andrews. He already had an intimate connection with Muiravonside because he had married Anna, the second daughter of Charles Stirling, at Muiravonside House in August 1858.

Illus 27: The two Barges setting out for Muiravonside laden with children, 1900.
As well as the Muiravonside Sunday School pupils many other groups were allowed into the grounds throughout the century where they were often fed and watered. These included the members of the Linlithgow West United Presbyterian Church, the Avonbridge and Standburn United Presbyterian Sabbath Schools, and children at Muiravonside and Drumbowie Public Schools. In July 1900 the children and their carers of the Linlithgow Parish Church Sabbath School numbering 400 travelled along the Union Canal on two barges supplied by Messrs Dougal & Son of Winchburgh.
The journey was captivating, though somewhat crowded. Upon arrival at Muiravonside they played in the park and picnicked in a field, provided with buns and milk by Mrs Stirling.

Illus 28: Muiravonside House looking north-west with the conservatory.
In the 1880s a large conservatory was attached to the south face of the house where it overlooked a small garden.
Thomas Mayne Stirling had died at his principal residence at St Andrews on 5 September 1893 aged 69, leaving £120,004 in will, as well as property.

Illus 29: Four of the Servants at Muiravonside House. James Weightman on the right.
The 1881 census shows that as well as the Stirling family there was a lady’s maid, cook, housemaid, nurse, parlour maid and kitchen maid living at the house.
The red-headed coachman already mentioned was James Weightman. His son, also James, went to London and started as a page, rising to footman and then to butler. When John Stirling inherited the estate in 1893 James Weightman returned as coachman and served there under five masters. He became the estate overseer or grieve and lived in the cottage at Newparks.

Illus 30: The Dwelling at the North end of Newparks, c1910.
The position of head gardener also seems to have become hereditary. Mr Leeder had taken up this post in 1840 and was succeeded in 1880 by his son, Robert, who died in post in November 1902. His place was then taken by his brother, Charles, who had been the gardener at Culdres. He, in turn, was followed by Fred Leeder. This unfortunate young man was killed in the garden at Muiravonside early one morning in May 1927. He had been out hunting rabbits and as he walked though the garden the double-barrelled gun that he was carrying caught on a bush and the trigger was depressed resulting in a serious head injury. He was 32 years old and unmarried.


Illus 32: The Curling Pond looking north-west.
Curling became very popular in Scotland towards the end of the 19th century and shallow ponds were constructed adjacent to many towns and villages as well as in the grounds of country homes. That at Muiravonside House is unusual in being linear, allowing just a single game to be played at a time and was clearly intended for the use of the household. The shallow depth of water allowed it to freeze more readily. It is located in the low-lying ground to the west of the walled garden and its earthworks are still very evident. The path to its east was lined with beech trees which are now mature.
A hydraulic ram was fitted into a circular brick recess to the north of the curling pond. Water from the lade above it would have allowed water to be pumped up to Muiravonside House. These devices are often used in remote places as the ram required no outside source of power other than the kinetic energy of the flowing water. It would have taken in water at one pressure and flow rate and output it at a higher pressure and lower flow rate using the water hammer effect. Its operation must have produced a constant thudding noise. At the top of the hill above the house, near to the old offices, a large rectangular reservoir was constructed. Water could be pumped there and then gravity fed to the house. It was also a useful asset to have in case of fire – the nearest alternative supply being in the river well below.
John Stirling of Muiravonside died there on 19 Feb 1905 at 50 years of age. He had been a barrister by profession and like his forebears he took an active part in the political life of the area. For six years he had represented Muiravonside (east) Division on the County Council before retiring due to ill-health. As a local landowner it is not surprising to find that he was active on the local committee to examine the purification of the River Avon. He was a justice of the peace and Chair of Muiravonside Parish School Board and Muiravonside Parish Council. In his will he left £26,557 in addition to real estate. Being childless the estate went into a trust consisting of some of his brothers with Francis Henry Stirling in the lead. Another brother, Thomas Willing Stirling, the sixth son, obtained the tenancy of Muiravonside for life. Commander Thomas Willing Stirling had entered the Royal Navy as a boy and reached the rank of Lieutenant-Commander before retiring in 1892. He then spent several years in British Columbia in fruit farming.
This was not a satisfactory state of affairs and a legal dispute arose in 1908 in which his nephew claimed the right to the estate. Richard was the son of Thomas W Stirling’s brother Walter, the fourth son of Thomas Mayne Stirling. The estates, including the St Andrews property, were valued at £80.000-£100,000. The court decided in favour of Thomas W Stirling as Richard’s mother had not been properly divorced before marrying Walter! This was not to be the last family dispute over inheritance.
Thomas does not appear to have been living at Muiravonside at this time and the house was leased to Thomas Paterson Gillespie and his wife. In July 1909 Thomas Gillespie of Muiravonside House and Charles Chalmers of Longcroft formed a limited liability company from Thomas Chalmers & Sons, papermakers. Mr and Mrs Gillespie were there until at least 1912 when they played a strong role in providing soup to the families of striking miners in the area. Fox hunting over the grounds was a prominent feature of these years.

Illus 33: A Section of the Muiravonside Quilt.
A quilt bedspread bearing 646 embroidered names on the front and dated “Muiravonside/ 1910” on the back is now in the possession of Falkirk Museum (accession number 2004-45-1), the gift of a distant member of the Stirling family. It had been in the possession of Arthur Charles Stirling, the son of Thomas. At the time he would have been 15 years old, but it is not known if he inherited it from his parents at a later date.
The names appear to be those of the local people living on and around the Muiravonside estate. It is a unique record and reflects the continuing close relationship between the family and its tenants. The bedspread may be the “Blue and flowered sateen down quilt” listed in the nursery (bedroom 3) at Muiravonside House in 1928. In September 1946 Mrs Arthur Stirling of Muiravonside House lent tapestry and embroidery work to the Muiravonside Horticultural Show held in Maddiston School and such an item would certainly have been of local interest.
At the outbreak of the First World War Commander Thomas Willing Stirling rejoined the Royal Navy in 1914 and served in the Admiralty Operations Department until 1919. His eldest son, Lieutenant Robert Stirling, was killed in February 1915 at the age of 22, serving in the Argyll and Southern Highlanders. He had been in the army since 1912. Almost as an act of defiance 200 members of the Falkirk and the Polmont Volunteer Training Corps marched from their respective bases to parade in the grounds of Muiravonside House in August 1916.
After the war Muiravonside House continued to be let. In 1922 Dowager Lady Watson was there and two years later it was occupied by Colonel and Mrs Gervase Thorpe. It was advertised in 1925:
“To let furnished, for summer months, MUIRAVONSIDE HOUSE, 3 ½ miles from Linlithgow and under 2 from Manuel Station, containing entrance hall, 4 public rooms, 6 bedrooms, 2 dressingrooms, & c.: electric light; telephone, tennis lawn; entry as may be arranged…”
(Scotsman 13 May 1925, 3).
A detailed inventory taken in 1928 gives a good illustration of what those furnishings were. The full list will be found on the website as a separate entry, but as an example, the rather small entrance hall contained:
- Open grate with brass fleur-de-lis mounts.
- Blue and white tile sides. 1 cracked.
- Tile hearth
- Iron heaing stove with small ash pan.
- Openwork iron fender.
- Openwork iron fender.
- Oak mantelpiece. Strip moulding off.
- 2 tail Nankin blue and white hawthorn vase, 18 ins high.
- Embossed brass coal helmet with bow handle and scoop.
- Tapestry draught screen with two side leaves. 1 leather binding faulty.
- 4 oak hall chairs with carved thistle backs and painted crest panels. 2 small pieces out sides, seats marked, legs dented, 2 new chips, 1 leg sprung.
- Antique mahogany drawing table on adjustable pillar and claw with folding top. Top scratched, 3 small burn marks, 2 pieces moulding out pillar.
- 3 valve wireless set with two coils and battery. 1 battery terminal off.
- Set ear phones.
- National telephone.
- Large antique mahogany circular shaped table on shaped pillar with brass shell feet. Ends cut, piece beading off pillar, old marks and scratches on top.
- Large decorated Chinese porcelain vase, 24ins high. Side glued.
- Copper mortar and pestle.
- Persian copper and brass kettle.
- Metal presentation cow bell.
- Large brass kettle on stand. Few dents.
- Small brass ash bowl on stand, 3 ½ ins high.
- 2 openwork square porcelain flower pots with heavy brass scroll mounts. 1 cracked at corner.
- Oriental brass pillar oil-y-cruise stand, 18ins high.
- Oriental embossed copper plate, 8ins diameter.
- Blue and white china umbrella vase, 24ins high.
- Native wood torture block with irons.
- Library steps chair (wired as steps).
- 2 French marqueterie and ormolu mounted cabinets fitted with shelves, 1 locked, 1 key.
- Pair large Dresden china vases and covers, richly decorated in colours with figures and encrusted flowers. Several pieces off flowers, 1 Cupid hand off, 1 arm glued.
- Pair richly decorated Dresden china figure groups with trees and rustic bases. Several pieces off trees, 2 arms off.
- Pair Dresden china figure and basket ornaments decorated in colours. Small cracks in basket, flowers chipped.
- Circular gong on oak stand with beater.
- 2 large Celadon vases with double openwork blue and white handles, 4ft 3ins high. 1 cracked at base, 2 handles clasped.
- Circular wall barometer.
- 6 porcelain plates, decorated coat of arms (on wall). 1 cracked.
- 2 oil portraits in gilt frames. Pieces off three frames, 1 chipped.
- 1 oil portrait in black frame. Pieces off frame.
- Bordered Turkey carpet, green ground. Holed and worn at fire, small cut near kitchen entrance.
- Small coloured wool door mat.
- 2 pairs flowered taffeta curtains and loopers.
- 3 brass cornice poles, rings, ends and brackets. Ends loose.
- 2 pieces Holland blinds.
- Coco mat fitted to well.
- Iron foot scraper outside.
- 2 roof lights with bulbs and cut crystal globes.


Thomas Stirling was living there periodically and he died at Muiravonside House on 17 March 1930 aged 64 and was buried in the private graveyard on the estate. He was survived by his widow, a son and two daughters.
His surviving son, Captain Arthur Charles Stirling inherited. He had suffered from shell shock during the war and, because he had psychological behavioural problems, for many years he was often accompanied on his travels by a trained nurse. He initially resided at St Andrews and from 1933 to 1935 Bruce and Mrs Warren took Muiravonside House, at which point they bought Rivaldsgreen House in Linlithgow.
As the house was little used it was requisitioned in 1941 for the army. In 1941 ‘E’ Company of the 12th Argyll and Sutherland Highlanders under Major Thomas Edward Cairns was in occupation at Muiravonside House and farm. It was convenient for the Admiralty Depot established at Causewayend. They were not there long and the 1st Light Anti-Aircraft Regiment of the Polish Forces took over the occupation of Tarduf and Muiravonside Houses. The Poles were outgoing and became a familiar sight in the area. The following item is taken from the Falkirk Herald of 6 May 1944:
“In return for hospitality given by the organisers of the social evening held recently in Whitecross, members of a Polish unit held a party at Muiravonside House on Monday evening. The dining hall, where tea was served, was tastefully decorated for the occasion with flags, flowers and evergreens. After tea, the floor was cleared and the company, which numbered 80 couples, spent the rest of the evening in dancing to music provided by the Polish Lala Band. Songs were given by Mrs G Scott, Mrs J Macaulay, Col Henry Drozdz, Pte Leon Kaspizak, while a Polish choir also gave a spirited rendering of the Polish National anthem and other songs. Various party games and a lucky dip competition provided by the ladies for their hosts added to the fun. Refreshments were also provided at an interval. At the close a member of the unit thanked everyone for attending and Mrs Wilson replied on behalf of the guests.”
Huts were built near the house and in December 1946 a sectional hut measuring 90ft x 18ft was put up for sale. Half a century later, in June 2003, a mechanical digger accidentally uncovered a box load of SIP grenades which had been deliberately secreted in the sloping ground just to the north of the house. SIP stands for Self-Igniting Phosphorus, and upon exposure to the air they burst into flames. Such weapons were more usually associated with the Home Guard and it is known that they provided protection for the nearby munitions dump.
The Stirling family returned after the war and Mrs Stirling started the tradition of gifting a Christmas tree from the estate to the parish church. Behind the house were the graves of the family dogs. These had wooden grave markers, one of which read: “SAM/ JUNE 10TH 1949/ IN HIS 8TH YEAR/ A GALLANT/ SPANIEL”. These were still there in 1977 but have long since disappeared.
The estate was run down and when Arthur Stirling died there on 22 Feb 1967 the house was in a poor condition. He decided to leave his possessions to his sister, but yet another dispute over succession followed. A cousin, Sir Charles Stirling, objected on the grounds of entail and a protracted legal case ensued. It took ten years for the courts to decide in his favour, but by then the house had suffered years of neglect and vandalism. Sir Charles, already elderly, decided to sell.


In 1978 the Stirling County Planning Department published a report on the possibility of establishing a country park at Muiravonside. The historic landscape features were considered to be important to this function and the house would be an essential part. Indeed, the report says that it would be unthinkable to propose demolition of the house. Using the Countryside (Scotland) Act of 1967 Falkirk Planning Department decided to purchase the estate of Muiravonside for a country park. In 1978 170 acres (70ha) were bought for £70,000 with aid from the Countryside Commission. This included Muiravonside House, which was demolished in 1979. The buildings at Newparks Farm were used to create an estate manager’s house and the outbuildings were populated with donkeys, Shetland ponies, several breeds of sheep, hens, rabbits, guinea pigs, ducks, geese, cows, Tamworth pigs, and a Vietnamese Pot-bellied pig. The stables were converted into a visitor centre with an exhibition room, audio-visual room and toilets. The walled garden was used as a campsite with toilets and shower facilities provided in the former gardener’s cottage
David Forbes was the last tenant of ‘the Gardens’, Muiravonside. He complained about the dampness of the house and was given a council house in Whitecross.


The park was transferred from the Planning Department to Leisure Services in 1981 and became the base for MSC projects to improve the paths and extend the farm. A ranger was appointed in 1981 and the park officially opened to the public in 1982. Each summer until about 1990 a country fair was held, featuring horse jumping and an exhibition by Falkirk Museum. The adventure playground was improved in 1992 with new climbing frames. A cafe was opened in the stables complex in 1994. In 2004 the old mill buildings were refurbished for use as an outdoor recreation centre and the old gardener’s house was replaced by changing rooms.

In 2002 the remainder of the estate was sold off by Francis John Stirling in nine lots, including Castlehill, Echobank, Redford, Loan and land at Standburn.
The estate continues to evolve to meet the demands of the community and health and safety legislation. Unfortunately the terraced paths in the gorge were closed after a storm brought down a number of trees and access to the summerhouse was restricted. By this time a River Avon Heritage Trail had been developed and passes through the estate with a new flight of steps up to the Avon Aqueduct.

In 2015 the beginning of a new sculpture walk was installed in the field to the south east of Newparks by the Falkirk Community Trust. This links the general visitor car park to the visitor centre by a route full of viewpoints. Beside its starting point allotments were placed in order to bring more community life to the place – though at the expense of the loss of open pasture.
Sites and Monuments Records
| Muiravonside House | SMR 781 | NS 9647 7532 |
| Muiravonside House Summerhouse | SMR 849 | NS 9650 7527 |
| Muiravonside House Stables | SMR 1096 | NS 9652 7533 |
| Muiravonside House Ice-house | SMR 71 | NS 9653 7540 |
| Muiravonside House Graveyard | SMR 850 | NS 9676 7529 |
| Muiravonside House Doocot | SMR 38 | NS 9654 7535 |
| Muiravonside Limekiln | SMR 93 | NS 963 758 |
| Muiravonside Mill | SMR 858 | NS 9681 7556 |
| Muiravonside Walled Garden | SMR 859 | NS 968 754 |
| Castlehill, Muiravonside | SMR 323 | NS 957 756 |
Bibliography
| Leask, D. | 2017 | A Historic Tour of the Parish of Muiravonside. |
| RCAHMS | 1963 | Stirlingshire: An inventory of the ancient monuments. |
| Reid, J. | 1994 | ‘The feudal land divisions of East Stirlingshire: Muiravonside parish,’ Calatria 6, 79-110. |
| Stirling, W.F. | 1953 | Safety Last |
G.B. Bailey (2020)
